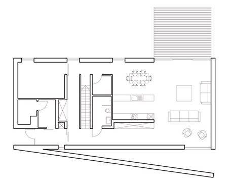
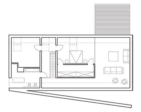
Polish Modern Architecture - Plastic House in Lodz, Poland
โพสท์โดยเป็นกำลังใจให้เจ้าของกระทู้โดยการ "VOTE" และ "SHARE"
Polish Modern Architecture - Plastic House in Lodz, Poland
20 VOTES (4/5 จาก 5 คน)
หากคุณเป็นเจ้าของนิตยสาร/โมเดลลิ่ง เอเจนซี่ ต้องการโปรโมท สามารถส่ง e-mail แจ้งทีมงานให้ตั้งค่า username ของคุณเป็น Official User ได้ที่ info@postjung.com โดยไม่มีค่าใช้จ่ายใดๆ









